Prodej novostavby bytu 2+kk s balkonem v Brně
Stav nabídky:
Prodáno/Pronajato
6 999 000 Kč
Neplatíte provizi realitní kanceláře.
Specifikace nemovitosti
Plocha podlahová:
52 m2
Výměra pozemku:
0 m2
Dispozice:
2+kk
Balkon/Lodžie:
Ano
Sklep:
Ano
Parkování:
Ne
Výtah:
Ano
Bezbariérový:
Ano
Energetická třída
C - Úsporná
Vlastnictví
Osobní
Konstrukce
Cihlová
Stav nemovitosti
Novostavba
Umístění
Klidná část obce
Počet podlaží
8
Číslo podlaží
4. NP
Dopravní spojení
Dálnice, Silnice, MHD, Autobus
Popis:
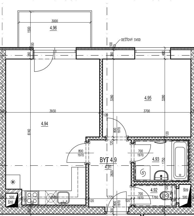
Exkluzivně Vám nabízíme ke koupi výjimečný byt o dispozici 2+kk v brněnském Žebětíně, na ulici Hlinecká. Nemovitost se nachází ve čtvrtém nadzemním podlaží precizní zděné novostavby zkolaudované v roce 2023. Tato lokalita je vyhlášená svou klidnou atmosférou, výbornou dostupností do centra města i bezprostřední blízkostí přírody, což z ní dělá ideální místo pro spokojený život i stabilní zhodnocení financí. Nemovitost o celkové výměře 51,5 m2 je navržena ve vysokém standardu, který uspokojí i náročné zájemce. Srdcem domova je světlý obývací pokoj s kuchyňským koutem, ze kterého vstoupíte na příjemný balkon o velikosti 3,5 m², ideální pro ranní kávu nebo večerní relaxaci. Součástí prodeje je kvalitní kuchyňská linka vybavená vestavnými spotřebiči – naleznete zde sklokeramickou desku Bosch, elektrickou troubu, digestoř značky Mora a myčku nádobí Gorenje. V bytě zůstává také pohodlná manželská postel v ložnici a zbytek vybavení je možné odkoupit po dohodě s majitelem. K bytu samozřejmě náleží praktický zděný sklep o výměře 2 m² pro uložení sezónních věcí. Mezi hlavní benefity této nemovitosti můžeme zařadit balkon s příjemným výhledem na žebětínský les, kvalitu provedení nemovitosti, její zařízení ve vyšším standardu včetně lepených vinylových podlah a konečně nízké měsíční náklady ve výši 2.800,- Kč + elektrická energie dle platného předpisu plateb. Cena nemovitosti činí 6.990.000,- Kč a tato částka je konečná, včetně provize realitní kanceláře, kterou hradí prodávající. Vzhledem k vysokému standardu bytu a atraktivitě lokality uvádíme, že v případě vyššího počtu zájemců bude upřednostněna vyšší cenová nabídka. V ceně není zahrnut správná poplatek na katastru nemovitostí ve výši 2.000,- Kč, jehož plátcem je kupující. Pokud vás tento byt zaujal a chcete se o jeho kvalitách přesvědčit osobně, vyplňte prosím kontaktní formulář pod inzerátem a my se vám obratem ozveme s termínem prohlídky. Už nyní se těšíme až Vám byt ukážeme osobně a tímto Vás srdečně zveme na prohlídku. Jsme Spolehlivá realitka s.r.o. - Gentlemani ve světě realit.

Mám zájem o prohlídku této nemovitosti

Pokud máte dotaz k nemovitosti nebo zájem o prohlídku, můžete nás kontaktovat rovnou telefonicky: 601 188 704

Recenze našich klientů

Bc. Leona Kudláčková
Bc. Leona Kudláčková
Datum: 3.11.2025, typ transakce: prodej bytu v okr. Brno-venkov

"Pan Malý je opravdu profesionál ve svém oboru. Vynikající, vstřícný a férový přístup. Mohu vřele doporučit!"

PRODÁNO ZA 9 DNŮ 
Ladislav Valík
Ladislav Valík
Datum: 13.12.2025, typ transakce: koupě bytu v okr. Brno-město

"Nákup nemovitosti je vždy záležitost, která se může pokazit na milionu různých drobností. S panem Malým se nám jim ale podařilo vyhnout, takže nakonec vše proběhlo hladce - od komunikace s prodávajícími, přes pomoc při získání hypotéky, až po samotný převod. Děkujeme!"

PRODÁNO ZA 27 DNŮ 
Lukáš Houdek
Lukáš Houdek
Datum: 12.11.2025, typ transakce: pronájem bytu v okr. Brno-město

"Pana Maleho muzu doporucit. Resil jsem pres nej pronajem bytu v Bystrci a vse bylo v poradku. Dobrou a poctivou praci dokazu ocenit a proto pisi svoji recenzi. Houdek Brno"

PRONAJATO ZA 15 DNŮ 
Mgr. Martin Čermák
Mgr. Martin Čermák
Datum: 23.12.2025, Typ transakce: pronájem bytu v okr. Brno-město

"Pan Malý je spolehlivý a kvalitní realitní makléř, který klade na první místo spokojenost klientů. Bez obav doporučuji. M. Čermák."

PRONAJATO ZA 5 DNŮ 
 
Petr Kučera
Petr Kučera
Datum: 21.9.2025, typ transakce: prodej bytu v okr. Brno-město

"Pan Malý je profesionál v oboru. Prodej mého bytu v centru Brna přes Spolehlivou realitku proběhl rychle a hladce. Oproti konkurenci nabízí velice prijatelnou provizi která prodejní cenu zbytečně nenavyšuje. Jeho služby Doporučuji."

PRODÁNO ZA 34 DNŮ 
Jarmila a Jiří Kadlecovi
Jarmila a Jiří Kadlecovi
Datum: 7.3.2020, Typ transakce: koupě a následný pronájem nemovitostí v okr. Brno-město

“Dobrý den, spolupráce s panem Malým byla při koupi a pronájmu nemovitosti výborná, byl vždy vstřícný a ochotný. Děkujeme manželé Kadlecovi”
Ing. Jan Dobrovolný
Ing. Jan Dobrovolný
Datum: 17.1.2022, Typ transakce: koupě bytu v okr. Brno-město

"Kupovali jsme byt a Spolehlivou realitku můžu jen doporučit. Jednání vstřícné, vše proběhlo bez problémů. Pan Malý je profesionál, vyzná se v právních věcech a dokáže vše rychle a ochotně zajistit. Velmi dobrý přístup."
Mgr. Jan Vyhnánek
Mgr. Jan Vyhnánek
Datum: 26.9.2021, Typ transakce: prodej bytu v okr. Brno-město

"Spolupraci s RK bych definoval jako velmi efektivni a vstricnou. Kdyz se vyskytl nejaky problem v prubehu prodeje bytu, pan Maly reagoval rychle a vse dovedl ke zdarnemu konci ku spokojenosti obou stran. Ferova RK, ktera nic netaji."
Michael Juras
Michael Juras
Datum: 23.1.2022, Typ transakce: prodej bytu v okr. Brno-město

"Vybral jsem si Spolehlivou realitku na prodej bytu na základě recenzí, které opravdu nehlaly. Pan Malý řeší vše ochotně a spolehlivě a v případě potřeby vím kam se obrátit. Můžu jen doporučit."

PRODÁNO ZA 29 DNŮ
Iva Drápalová
Iva Drápalová
Datum: 13.2.2020, Typ transakce: pronájem bytu v okr. Brno-venkov 

“Doporučuji. Vše vyřešeno rychle k maximální spokojenosti. Pan Malý má přehled v oboru a je velmi ochotný. Tímto ještě jednou děkuji za spolupráci a přeji mnoho spokojených klientů. Drápalová”
Štěpán Novotný
Štěpán Novotný
Datum: 11.2.2020, Typ transakce: koupě bytu v okr. Brno-město

„Velmi rychlé a bezproblémové jednání při nákupu nemovitosti v Medlánkách. Mohu jen doporučit!“
Radim Ouředník - Veritably s.r.o.
Radim Ouředník - Veritably s.r.o.
Datum: 29.1.2022, Typ transakce: prodej domu v okr. Brno-město

"dobry den, sam jsem realitnim maklerem jiz od 03/1998 - pri spolupraci jsme byli ja i muj klient na strane kupujici velice mile poteseni osobnim pristupem pana Maleho, profesnimi znalostmi a obchodnimi dovednostmi - takovych lidi, jako je pan maly, je v nasem oboru potreba - jen tak dal, kolego, drzim vam/nam palce - (s)mejte se krasne, radim ourednik veritably s.r.o."

PRODÁNO ZA 41 DNŮ 


 
Michael Juras
Michael Juras
Datum: 23.1.2022, Typ transakce: prodej bytu v okr. Brno-město

"Vybral jsem si Spolehlivou realitku na prodej bytu na základě recenzí, které opravdu nehlaly. Pan Malý řeší vše ochotně a spolehlivě a v případě potřeby vím kam se obrátit. Můžu jen doporučit."
Michal Staněk
Michal Staněk
Datum: 19.10.2021, Typ transakce: prodej bytu v okr. Brno-město

"Se spoluprací s RK jsem byl velice spokojen. Při prodeji vše probíhalo rychle a bez sebemenších problému. Přístup pana Malého mohu zhodnotit jako velmi vstřícný a profesionální. Tuto realitní kancelář můžu jen doporučit."
Michal Staněk
Michal Staněk
Datum: 19.10.2021, Typ transakce: prodej bytu v okr. Brno-město

"Se spoluprací s RK jsem byl velice spokojen. Při prodeji vše probíhalo rychle a bez sebemenších problému. Přístup pana Malého mohu zhodnotit jako velmi vstřícný a profesionální. Tuto realitní kancelář můžu jen doporučit."

PRODÁNO ZA POUHÝ 1 DEN
Tomáš Weisz
Tomáš Weisz
Datum: 11.2.2020, Typ transakce: koupě a pronájmy bytů v okr. Brno-město

"S panem Malým spolupracuji již třetím rokem k naprosté spokojenosti."
Veronika Somerová
Veronika Somerová
Datum: 11.2.2020, Typ transakce: koupě bytu v okr. Boskovice

„Dobrý den, chtěla bych poděkovat panu Malému za pomoc při koupi bytu v Letovicích. Celý obchod proběhl rychle a bez problémů. Všem můžu doporučit. S pozdravem Somerová :)“
 
Mgr. Jan Vyhnánek
Mgr. Jan Vyhnánek
Datum: 26.9.2021, Typ transakce: prodej bytu v okr. Brno-město

"Spolupraci s RK bych definoval jako velmi efektivni a vstricnou. Kdyz se vyskytl nejaky problem v prubehu prodeje bytu, pan Maly reagoval rychle a vse dovedl ke zdarnemu konci ku spokojenosti obou stran. Ferova RK, ktera nic netaji."

NAVÝŠENÍ CENY O 124.000,- KČ
Ing. Jan Dobrovolný
Ing. Jan Dobrovolný
Datum: 17.1.2022, Typ transakce: koupě bytu v okr. Brno-město

"Kupovali jsme byt a Spolehlivou realitku můžu jen doporučit. Jednání vstřícné, vše proběhlo bez problémů. Pan Malý je profesionál, vyzná se v právních věcech a dokáže vše rychle a ochotně zajistit. Velmi dobrý přístup."

PRODÁNO ZA 18 DNŮ 
Vlastimil a Monika Novotní
Vlastimil a Monika Novotní
Datum: 11.2.2020, Typ transakce: prodej a pronájem nemovitostí v okr. Brno-město a Brno-venkov

„Dobrý den, chtěla bych kladně ohodnotit práci realitního makléře pana Malého, který nám vždy vyšel vstříc, je spolehlivý a důsledný. Díky jeho profesionálního přístupu byla jedna nemovitost prodána a další pronajata k naší maximální spokojenosti. Manželé Novotní.“
Radim Ouředník - Veritably s.r.o.
Radim Ouředník - Veritably s.r.o.
Datum: 29.1.2022, Typ transakce: prodej domu v okr. Brno-město

"dobry den, sam jsem realitnim maklerem jiz od 03/1998 - byt jsem se s realitni kancelari a osobou pana jana maleho setkal koncem roku 2021 pracovne teprve poprve, byli jsme ja i muj klient na strane kupujici velice mile poteseni jeho osobnim pristupem, profesnimi znalostmi a obchodnimi dovednostmi - takovych lidi, jako je pan maly, je v nasem oboru potreba - jen tak dal, kolego, drzim vam/nam palce - (s)mejte se krasne, radim ourednik veritably s.r.o."

 
Jindřich Drábík
Jindřich Drábík
Datum: 11.2.2020, Typ transakce: pronájem bytů v okr. Brno - venkov 

„Všechno OK.“
SpolReal_ikonka-do-recenzi.png
Libor Sloupenský
Libor Sloupenský
Datum: 23.6.2021, Typ transakce: prodej bytu v okr. Brno-město

“Skvělá spolupráce a profesionální přístup, i v komplikovaných momentech kdy vše neklape podle plánů. Pana Malého mohu doporučit.”

PRODÁNO ZA 21 DNŮ 
Dorota Anderlová
Dorota Anderlová
Datum: 29.6.2021, Typ transakce: koupě garáže v okr. Brno-město

“Děkujeme panu Malému za milý, vstřícný a profesionální přístup.”

PRODÁNO ZA 7 DNŮ 
VODOPLAST s.r.o.
VODOPLAST s.r.o.
Datum: 30.6.2020, Typ transakce: podnájem nemovitostí v okr. Brno-město

Dobrý den, s prací vaší realitní kanceláře jsem byla spokojená. S realitním makléřem panem Malým jsem byla velmi spokojená, profesionální přístup, vstřícné jednání, dobře odhadl mé požadavky na pronájem a vyhledal odpovídající příjemné nájemce. Všem doporučuji. Jana Písaříková
doc. Ing. Anna Fedorová, CSc.
doc. Ing. Anna Fedorová, CSc.
Datum: 29.6.2021, Typ transakce: pronájem bytu v okr. Brno-město

“Společnost má výstižný název: spolehlivá realitka, s.r.o. Odborně zdatná, rychlé a vstřícné jednání. Podle mých vlastních zkušeností ji mohu vřele doporučit.”

PRODÁNO ZA 20 DNŮ 
Ing. Petr Dohnal
Ing. Petr Dohnal
Datum: 28.6.2021, Typ transakce: pronájem bytu v okr. Brno-venkov

“Děkujeme za spolupráci a pomoc. Byli jsme spokojeni. Realitku a pana Malého můžeme doporučit!”

PRONAJATO ZA 6 DNŮ 
Mgr. Libuše Tesařová
Mgr. Libuše Tesařová
Datum: 29.6.2021, Typ transakce: pronájem bytu v okr. Brno-venkov

“Děkuji za skvělou spolupráci při pronájmu bytu, kterou jsem využila opakovaně. Přístup p. Malého byl profesionální a realitku mohu jenom doporučit!”

PRONAJATO ZA 11 DNŮ 
Jarmila a Jiří Kadlecovi
Jarmila a Jiří Kadlecovi
Datum: 7.3.2020, Typ transakce: koupě a následný pronájem nemovitostí v okr. Brno-město

“Dobrý den, spolupráce s panem Malým byla při koupi a pronájmu nemovitosti výborná, byl vždy vstřícný a ochotný. Děkujeme manželé Kadlecovi”

PRODÁNO ZA 17 DNŮ 
Libor Sloupenský
Libor Sloupenský
Datum: 23.6.2021, Typ transakce: prodej bytu v okr. Brno-město

“Skvělá spolupráce a profesionální přístup, i v komplikovaných momentech kdy vše neklape podle plánů. Pana Malého mohu doporučit.”
Dorota Anderlová
Dorota Anderlová
Datum: 29.6.2021, Typ transakce: koupě garáže v okr. Brno-město

“Děkujeme panu Malému za milý, vstřícný a profesionální přístup.”
Iva Drápalová
Iva Drápalová
Datum: 13.2.2020, Typ transakce: pronájem bytu v okr. Brno-venkov 

“Doporučuji. Vše vyřešeno rychle k maximální spokojenosti. Pan Malý má přehled v oboru a je velmi ochotný. Tímto ještě jednou děkuji za spolupráci a přeji mnoho spokojených klientů. Drápalová”

PRONAJATO ZA 7 DNŮ 
Štěpán Novotný
Štěpán Novotný
Datum: 11.2.2020, Typ transakce: koupě bytu v okr. Brno-město

„Velmi rychlé a bezproblémové jednání při nákupu nemovitosti v Medlánkách. Mohu jen doporučit!“

PRODÁNO ZA 29 DNŮ 
doc. Ing. Anna Fedorová, CSc.
doc. Ing. Anna Fedorová, CSc.
Datum: 29.6.2021, Typ transakce: pronájem bytu v okr. Brno-město

“Společnost má výstižný název: spolehlivá realitka, s.r.o. Odborně zdatná, rychlé a vstřícné jednání. Podle mých vlastních zkušeností ji mohu vřele doporučit.”
Ing. Petr Dohnal
Ing. Petr Dohnal
Datum: 28.6.2021, Typ transakce: pronájem bytu v okr. Brno-venkov

“Děkujeme za spolupráci a pomoc. Byli jsme spokojeni. Realitku a pana Malého můžeme doporučit!”
Tomáš Weisz
Tomáš Weisz
Datum: 11.2.2020, Typ transakce: koupě a pronájmy bytů v okr. Brno-město

"S panem Malým spolupracuji již třetím rokem k naprosté spokojenosti."

NEMOVITOSTI PRODÁNY DO 43 DNŮ
Veronika Somerová
Veronika Somerová
Datum: 11.2.2020, Typ transakce: koupě bytu v okr. Boskovice

„Dobrý den, chtěla bych poděkovat panu Malému za pomoc při koupi bytu v Letovicích. Celý obchod proběhl rychle a bez problémů. Všem můžu doporučit. S pozdravem Somerová :)“

PRODÁNO ZA 38 DNŮ 

 
Mgr. Libuše Tesařová
Mgr. Libuše Tesařová
Datum: 29.6.2021, Typ transakce: pronájem bytu v okr. Brno-venkov

“Děkuji za skvělou spolupráci při pronájmu bytu, kterou jsem využila opakovaně. Přístup p. Malého byl profesionální a realitku mohu jenom doporučit!”
Jarmila a Jiří Kadlecovi
Jarmila a Jiří Kadlecovi
Datum: 7.3.2020, Typ transakce: koupě a následný pronájem nemovitostí v okr. Brno-město

“Dobrý den, spolupráce s panem Malým byla při koupi a pronájmu nemovitosti výborná, byl vždy vstřícný a ochotný. Děkujeme manželé Kadlecovi”
Vlastimil a Monika Novotní
Vlastimil a Monika Novotní
Datum: 11.2.2020, Typ transakce: prodej a pronájem nemovitostí v okr. Brno-město a Brno-venkov

„Dobrý den, chtěla bych kladně ohodnotit práci realitního makléře pana Malého, který nám vždy vyšel vstříc, je spolehlivý a důsledný. Díky jeho profesionálního přístupu byla jedna nemovitost prodána a další pronajata k naší maximální spokojenosti. Manželé Novotní.“

PRODÁNO ZA 42 DNŮ
Jindřich Drábík
Jindřich Drábík
Datum: 11.2.2020, Typ transakce: pronájem bytů v okr. Brno - venkov 

„Všechno OK.“
SpolReal_ikonka-do-recenzi.png
Iva Drápalová
Iva Drápalová
Datum: 13.2.2020, Typ transakce: pronájem bytu v okr. Brno-venkov 

“Doporučuji. Vše vyřešeno rychle k maximální spokojenosti. Pan Malý má přehled v oboru a je velmi ochotný. Tímto ještě jednou děkuji za spolupráci a přeji mnoho spokojených klientů. Drápalová”
VODOPLAST s.r.o.
VODOPLAST s.r.o.
Datum: 30.6.2020, Typ transakce: podnájem nemovitostí v okr. Brno-město

Dobrý den, s prací vaší realitní kanceláře jsem byla spokojená. S realitním makléřem panem Malým jsem byla velmi spokojená, profesionální přístup, vstřícné jednání, dobře odhadl mé požadavky na pronájem a vyhledal odpovídající příjemné nájemce. Všem doporučuji. Jana Písaříková
Štěpán Novotný
Štěpán Novotný
Datum: 11.2.2020, Typ transakce: koupě bytu v okr. Brno-město

„Velmi rychlé a bezproblémové jednání při nákupu nemovitosti v Medlánkách. Mohu jen doporučit!“
Tomáš Weisz
Tomáš Weisz
Datum: 11.2.2020, Typ transakce: koupě a pronájmy bytů v okr. Brno-město

"S panem Malým spolupracuji již třetím rokem k naprosté spokojenosti."
Vojtěch Polášek
Vojtěch Polášek
Datum: 20.1.2022, Typ transakce: prodej bytu v okr. Brno-město

"Název RK Spolehlivá realitka není reklamní slogan, ale přiléhavá chrakteristika. Při prodeji bytu si pan Malý u mě získal důvěru a respekt svou erudovaností, osobním a citlivým přístupem a uměním si dobře poradit i s nestandardními situacemi, které nastaly. Líbilo se mi také, že uměl vybalancovat zájmy obou stran - kupující i prodávající. Jsem velmi rád, že jsem u tak důležité věci, jako je prodej nemovitosti, měl při sobě právě tuto realitku."

NAVÝŠENÍ CENY O 283.500,- KČ
Veronika Somerová
Veronika Somerová
Datum: 11.2.2020, Typ transakce: koupě bytu v okr. Boskovice

„Dobrý den, chtěla bych poděkovat panu Malému za pomoc při koupi bytu v Letovicích. Celý obchod proběhl rychle a bez problémů. Všem můžu doporučit. S pozdravem Somerová :)“
 
Vlastimil a Monika Novotní
Vlastimil a Monika Novotní
Datum: 11.2.2020, Typ transakce: prodej a pronájem nemovitostí v okr. Brno-město a Brno-venkov

„Dobrý den, chtěla bych kladně ohodnotit práci realitního makléře pana Malého, který nám vždy vyšel vstříc, je spolehlivý a důsledný. Díky jeho profesionálního přístupu byla jedna nemovitost prodána a další pronajata k naší maximální spokojenosti. Manželé Novotní.“
Jindřich Drábík
Jindřich Drábík
Datum: 11.2.2020, Typ transakce: pronájem bytů v okr. Brno - venkov 

„Všechno OK.“
SpolReal_ikonka-do-recenzi.png
VODOPLAST s.r.o.
VODOPLAST s.r.o.
Datum: 30.6.2020, Typ transakce: podnájem nemovitostí v okr. Brno-město

Dobrý den, s prací vaší realitní kanceláře jsem byla spokojená. S realitním makléřem panem Malým jsem byla velmi spokojená, profesionální přístup, vstřícné jednání, dobře odhadl mé požadavky na pronájem a vyhledal odpovídající příjemné nájemce. Všem doporučuji. Jana Písaříková
Vojtěch Polášek
Vojtěch Polášek
Datum: 20.1.2022, Typ transakce: prodej bytu v okr. Brno-město

"Název RK Spolehlivá realitka není reklamní slogan, ale přiléhavá chrakteristika. Při prodeji bytu si pan Malý u mě získal důvěru a respekt svou erudovaností, osobním a citlivým přístupem a uměním si dobře poradit i s nestandardními situacemi, které nastaly. Líbilo se mi také, že uměl vybalancovat zájmy obou stran - kupující i prodávající. Jsem velmi rád, že jsem u tak důležité věci, jako je prodej nemovitosti, měl při sobě právě tuto realitku."